Нежилые свободного назначения площадью 29,60 м2, по цене 3500000 по адресу Ухтомская - 6

Цена 3 500 000 р.
Вид недвижимости Нежилые свободного назначения
Адрес Ухтомская, 6
Площадь помещения 29,6 м2
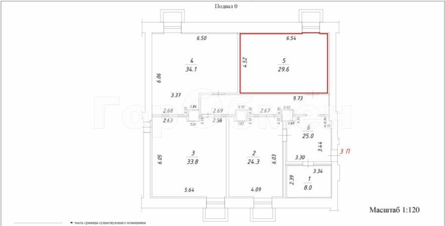
Помещение свободного назначения (отдельный кадастровый номер) – готовый арендный бизнес или для личного пользования. Площадь 29,6 кв.м, ( № 5 на плане), офисная отделка, полноценное окно. Кабинетная планировка, санузел на этаже. Два входа – с улицы и из подъезда. Цокольный этаж пятиэтажного кирпичного дома. Окна в приямках. Большой двор, мест для парковки всегда достаточно. Старый обжитой густонаселенный район Москвы с развитой инфраструктурой. Отличная транспортная доступность: метро, удобные выезды на СВХ, ТТК, набережную, шоссе Энтузиастов. Помещение оптимально под офис, пункт выдачи, склад и т.д. Все помещения на плане в продаже. Документы полностью готовы к сделке. Полная стоимость в ДКП. Возможна ипотека.
Объявление № 23840729
Дата подачи:
5 января 2026 г. 3:52
Дата обновления:
4 января 2026 г. 4:00
Просмотров 3 Хотите продать быстрее?

Продавец
Агентство недвижимости:
ЯКОВЛЕВ ПАВЕЛ ВИКТОРОВИЧ
Показать номер телефона
Пожаловаться
Комментарии:
Добавить